当前位置: 首页 > 产品大全 > 人工挖孔桩标准化施工流程详解

人工挖孔桩标准化施工流程详解

人工挖孔桩标准化施工流程详解

人工挖孔桩作为桩基工程中的重要形式,因其设备简单、施工灵活、承载力高等优点,在特定地质条件下被广泛采用。为确保施工安全与质量,必须遵循严格的标准化施工流程。以下是人工挖孔桩标准化施工的主要步骤:

一、施工前准备

  1. 现场勘查与设计交底:详细掌握地质水文资料、设计图纸及周边环境,明确桩位、桩径、桩长及持力层要求。
  2. 测量放线:依据控制点精准施放桩位中心点,设置护桩并做好标记,经复核无误后方可开孔。
  3. 场地平整与排水:清理、平整作业区域,设置截水沟、集水井等临时排水设施,确保地表水不流入孔内。
  4. 材料机具准备:备齐钢筋、水泥、砂石等合格材料,以及卷扬机、提土桶、照明、通风、潜水泵等施工设备,并检查其安全性能。
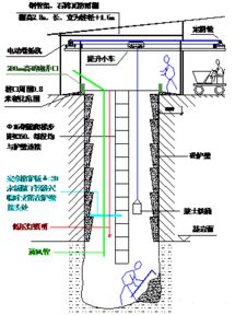
  5. 安全防护设施:在孔口周围设置高出地面20-30cm的混凝土护圈(锁口),并安装防护栏杆、盖板及醒目的安全警示标志。

二、开挖与护壁施工

  1. 分段开挖:采用“分段开挖、分段护壁”的方式,每段开挖深度宜为0.8-1.2m。坚硬土层可用风镐辅助,严禁爆破。
  2. 孔壁支护:每挖完一段,及时支设模板、浇筑混凝土护壁。护壁通常设计为上厚下薄的楔形结构,混凝土强度不低于C20,并加入速凝剂。上下节护壁间预留钢筋插筋,确保连接牢固。
  3. 垂直度与孔径控制:每挖深3-5m,用垂球或经纬仪检查孔壁垂直度,用孔规检查孔径,偏差需符合规范要求。
  4. 出土与运输:孔内土石方装入提土桶,通过卷扬机垂直提升至地面,及时运离孔口区域。

三、特殊工况处理

  1. 地下水控制:遇地下水时,采用潜水泵边抽水边开挖。对渗水量大的土层,可采取超前注浆或沉井法止水。
  2. 流砂、淤泥层处理:缩短每节开挖深度至0.3-0.5m,采用钢护筒或沉井法快速通过,必要时进行井点降水。
  3. 通风与照明:孔深超过10m或存在有害气体时,应采用鼓风机向孔内送风,确保空气流通。照明必须使用安全电压(通常为12V)的防水带罩灯具。

四、终孔检查与清底

  1. 到达设计深度后,核对地质情况是否与勘察报告相符,并清理孔底松渣、积水。
  2. 进行孔径、孔深、垂直度及孔底沉渣厚度检测,邀请监理、设计单位共同验收,形成书面记录。

五、钢筋笼制作与安装

  1. 钢筋笼宜在加工场分段制作,主筋连接宜采用焊接或机械连接,接头需错开。加强箍筋确保笼体刚度。
  2. 使用吊车或卷扬机平稳吊装,对准孔位缓慢下放。分段安装时,焊接或机械连接需符合规范,并控制保护层厚度。

六、混凝土灌注

  1. 采用导管法灌注混凝土。导管底距孔底30-50cm,初灌时导管埋深不小于1m。
  2. 混凝土须具备良好的和易性与流动性,坍落度宜为16-22cm。灌注应连续进行,随灌随提导管,保持埋深2-6m。
  3. 灌注至桩顶设计标高以上0.5-1m,超灌部分在后期承台施工前凿除。

七、施工安全与环保要点

  1. 每日开工前检测孔内有无有毒有害气体,并配备气体检测仪、防毒面具、安全绳等应急设备。
  2. 孔口作业人员须系安全带,孔内设应急软梯。暂停施工时,孔口必须加盖牢固盖板。
  3. 加强施工监测,尤其关注邻近建筑物、地下管线的沉降与位移。
  4. 做好泥浆、废土处理,减少施工噪音与粉尘,做到文明施工。

八、成桩检测与资料归档
按规范进行桩身完整性检测(如低应变法)和承载力检测(如静载试验)。整理施工全过程记录,包括测量放线、开挖、钢筋、混凝土、检测等资料,形成完整工程档案。

遵循以上标准化流程,强化过程管控与安全监督,是确保人工挖孔桩施工质量、安全及工期目标的关键。施工单位须结合具体工程实际,编制专项施工方案并严格执行,以打造牢固可靠的基础工程。

如若转载,请注明出处:http://www.gnzywk.com/product/280.html

更新时间:2026-02-02 13:11:00

产品列表

PRODUCT